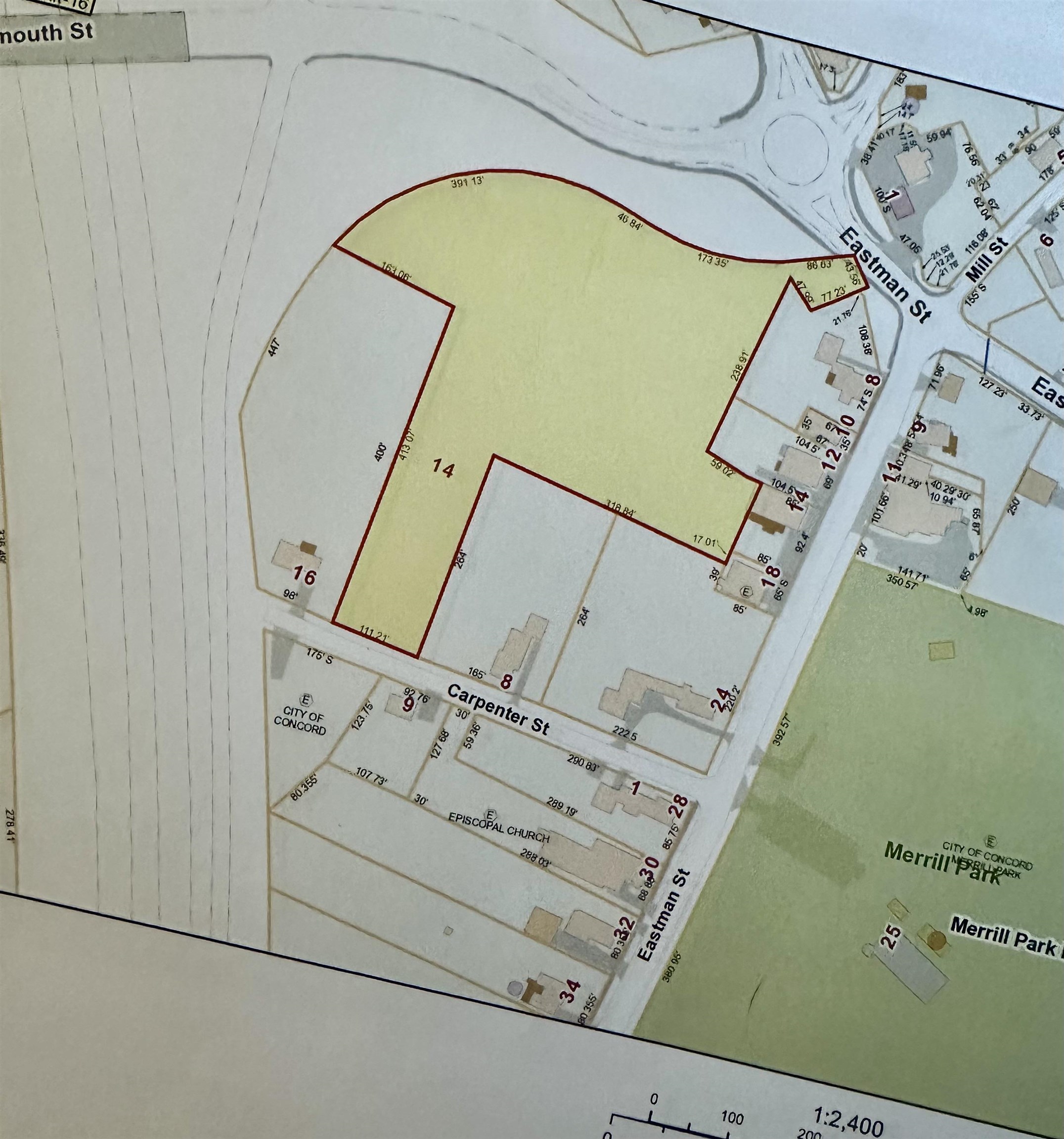
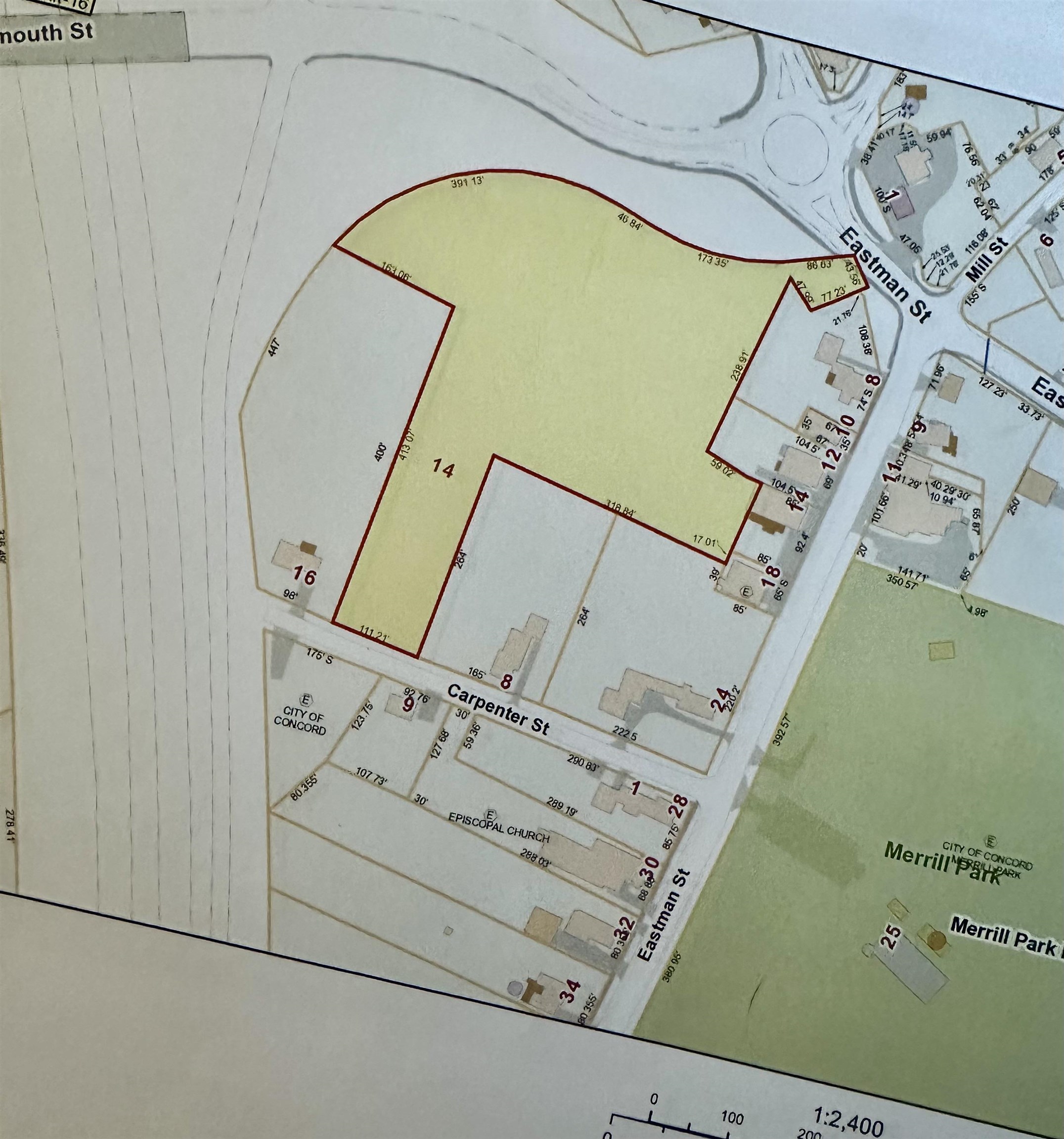
14 Carpenter Street, Concord, NH 03301
PRIME MLS Listing Number: 5072274
14 Carpenter Street, Concord, NH 03301
$275,000
Enter Your Information to Receive Updates on This Property
Your Contact Info Will Be Shared with the Listing Agent
Name
Email
Submit
Successfully Submitted!
Continue
Failed!
Go Back
Details
Link Copied
Send To
Name
Email
From
Your Name
Your Email
Your Phone
Subject
Message
Submit
Successfully Submitted!
Continue
Failed!
Go Back
Additional Media